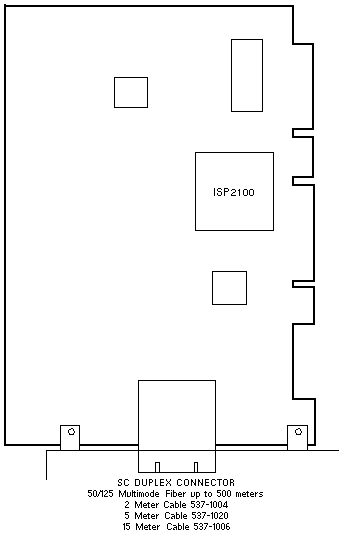
1Gigabit/Sec PCI Single FC Host Adapter (FC100/P)
| Workstations: |
Ultra 60, 80 |
| Servers: |
Enterprise 250, 450, 220R, 420R
Sun Fire V120 |
| Telco: |
Netra 120, t1, T1, t1400/1405 |
| Disk Arrays: |
StorEdge A5000, A5100, A5200,
A3500FC, T3, T3+ |
Option 6729
| 375-0040 |
| 3.3/5V 32/64Bit 33/66MHz |

Notes
- The minimum operating system is Solaris 2.6.
- The minimum StorEdge A5000 firmware is 1.05.
References
Sun StorEdge PCI FC-100/P Host Adapter Documentation.
|